專業生産(chǎn)、研發設計攪拌設備(bèi)的綜合型公司      新強主頁 | 加入收藏 | 設爲主頁 | 企業郵箱 當前的時間 :
   

 

 

産品列表 PRODUCT

 

   攪拌機系列

頂入式攪拌機

側入式攪拌機

潛水式攪拌機

高速分散攪拌機

真空攪拌機

磁力攪拌機

刮泥機

   幹粉混合系列

V型混合機

VH高效混合機

二維混料機

三維混料機

螺帶混合機

單錐雙螺旋混料機
雙錐混料機
槽型混合機
犁刀混合機

無重力混合機

   攪拌桶(罐)系列

夾套攪拌罐

普通攪拌罐

塑料攪拌罐

真空攪拌罐

衛生級攪拌罐

   攪拌器系列

槳式攪拌器

螺帶式攪拌器

錨式攪拌器

渦輪式攪拌器

旋槳式攪拌器

   機架系列

   砂磨機系列

實驗室砂磨機

實驗室納米砂磨機

量産納米研磨機

量産卧式砂磨機

立式砂磨機
雙動力砂磨機
研磨介質

   球磨系列

立式球磨機

立式升降球磨機

卧式攪拌球磨機

卧式幹法球磨機

卧式濕法球磨機

實驗型升降球磨機
實驗型幹濕兩用球磨機
連續式球磨機
循環球磨機
震動球磨機
八角球磨機
高效超細磨
立式高效研磨機

罐磨機

            雙行星攪拌系列

實驗型行星攪拌機

生産型雙行星攪拌機

液壓擠壓出料機

乳化攪拌罐

真空均質乳化機

 
 
聯系我們 Contact us  
 
銷售一部
鄭經理 0510-88301230
手機 15852539554
QQ 1983545134
銷售二部
沈經理 15852796716
QQ 913604226
銷售三部
劉經理 18706194598
QQ 470087325
技術部 手機 18706194598
公司傳真 0510-88791377
公司郵箱 sales@wxxqjb.com
公司網站 www.dyks1314.cn
地址:無錫惠山經濟開發區前洲配套區餘浩路3号

 

産(chǎn)品中心 Product

您現在的位置:首頁-産品中心
 
 

側入式皮帶攪拌機

 
 

一 、側入式皮帶攪拌機概述
  側入式皮帶攪拌機是将攪拌裝置安裝在設備筒體的側壁上,攪拌機上的攪拌器通常採用軸流型,以推進式攪拌器爲多,在消耗同等功率情況下,能得到高的攪拌效果,功率消耗僅爲頂攪拌的1/3~2/3,成本僅爲頂攪拌的1/4~1/3。轉速可在200~750r/min。
  廣泛應用於水處理、沼氣發酵、脫硫、除硝、化工、食品、造紙、石油等行業以及各種大型貯罐或貯槽的攪拌。使互溶液體混合均勻;使固體粒子在液相中溶解、離底懸浮或均勻懸浮;使不相溶的另一液相均勻懸浮或充分乳化;強化相間的傳質(如吸收等);強化傳熱及防止沉積等 。具有投資少、消耗功率小 、攪拌功率高、操作方便等特點。

 

二、産品特點
1)軟傳動,機械損傷低,結構緊湊,運行平穩;
2)占地面積小,處理量大,能耗低;
3)安裝、運行、維護費用低;
4)可在要求的混合時間内達到一定的攪拌強度,滿足混合速度快 、均勻、充分等要求,且水頭損失小,並可适應水量的變化以适用於各種介質容量的攪拌。

 

 

三、構造及工作過程
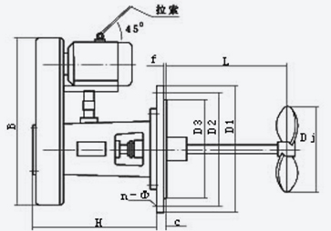
CPJ型側入式皮帶攪拌機由電機、皮帶盤、機架、機械密封、堵漏裝置、攪拌軸、攪拌器等組成。根據密封方式可分爲:A型:機械密封,B型:填料密封,C型:其它密封方式,可适用於不同密封要求的場合。安裝方式爲卧式安裝,也可根據現場工藝條件調整安裝方式。
驅動裝置採用普通電機或防爆電機直接通過皮帶輪驅動裝置與攪拌軸聯接。攪拌軸由雙向推力軸承和水潤滑滑動軸承支承,具有足夠的強度和剛度,並具有較高的穩定性。

 

四、型号表示方法


 
 
 
 
    五、側入式皮帶盤攪拌參數
 
 

CPJ側入式攪拌機主要參數及尺寸

 

攪拌機型号

電機功率

攪拌機轉速

攪拌器直徑

安 裝(zhuāng) 外 型 及 尺 寸

攪拌容量

重量

(Kw)

(r/min)

Dj

D1

D2

D3

C

F

n-Ø

L

H

B

(m3)

(Kg)

CPJ-0.55

0.55

400

250

375

335

309

24

2

12-Ø18

370

550

580

5~10

197

250

350

490

445

413

26

530

208

CPJ-0.75

0.75

400

250

375

335

309

24

2

12-Ø18

370

8~15

198

275

350

490

445

413

26

530

209

CPJ-1.1

1.1

400

300

440

395

363

24

2

12-Ø18

450

10~25

209

250

400

540

495

463

28

600

228

CPJ-1.5

1.5

400

300

440

395

363

24

2

16-Ø22

450

15~30

212

275

400

540

495

463

28

600

231

CPJ-2.2

2.2

375

350

490

445

413

26

2

16-Ø22

530

680

700

25~30

345

250

450

595

550

518

30

600

373

CPJ-3

3

400

350

490

445

413

26

2

16-Ø22

530

30~60

348

275

450

595

550

518

30

600

376

CPJ-4

4

375

400

540

495

463

28

2

16-Ø22

600

40~80

368

300

450

595

550

518

30

600

382

CPJ-5.5

5.5

400

400

540

495

463

28

2

20-Ø22

600

800

820

50~100

565

275

500

645

600

568

32

650

593

CPJ-7.5

7.5

375

450

595

550

518

30

2

20-Ø22

600

80~150

590

275

550

755

705

667

36

700

623

CPJ-11

11

400

450

595

550

518

30

2

20-Ø26

600

150~250

636

275

600

755

705

667

36

750

753

CPJ-15

15

400

500

645

600

568

32

2

24-Ø26

650

200~300

666

250

650

860

810

772

40

5

810

830

 

備注:
1、表中重量爲約重,不含懸挂或地腳支撐的重量
2、電機和尺寸根據用戶的物料特性及實際情況來定
3、當容器壁厚太薄時,強度不夠,請使用懸挂、 地腳支撐等輔助加固措施
4、表中數據隻做參考用

 
 
 

磁力攪拌器生産商,無錫新強攪拌設備有限公司專業生産供應恒溫磁力攪拌器 ,磁力加熱攪拌器,實驗室用機械攪拌器,小型化工攪拌機

銷售一部 鄭經理 0510-88301230 手機 15852539554 QQ 1983545134 銷售二部 沈經理 15852796716 QQ 913604226
銷售三部 劉經理 18706194598 QQ 470087325 技術部 手機 18706194598
公司傳真 0510-88791377 公司郵箱 sales@wxxqjb.com 公司網站 www.dyks1314.cn
地址:無錫惠山經濟開發區前洲配套區餘浩路3号